Характеристики
Серия подстанции
—
КТПТО (прогрев бетона)
Мощность подстанции, кВА
—
80
Материал обмоток трансформатора
—
Al
Напряжение ВН подстанции, кВ
—
0,38
Цвет металлокострукции
—
синий (RAL 5015)
Мощность нагрузки, кВт
—
80
Все характеристики
Наличие уточняйте у наших менеджеров
1. НАЗНАЧЕНИЕ
1.1. Подстанция трансформаторная комплектная для термообработки бетона и грунта КТПТОм-80-У1 (далее по тексту КТПТО) напряжением 380/55-95 В мощностью 80 кВА наружной установки предназначена для электропрогрева и других способов электротермообработки бетона и мерзлого грунта с автоматическим регулированием температуры, а также для питания сторонних потребителей переменным трехфазным напряжением 380 В и с максимальным током потребления 16 А.
Термообработка бетона ускоряет процесс его твердения, а наличие автоматического регулировании температуры сокращает расход электроэнергии.
1.2. Нормальная работа КТПТО обеспечивается при:
1.2.1 температуре окружающего воздуха при работе под нагрузкой от 10°С до минус 40°С (эпизодически до минус 45°С);
1.2.2 высоте над уровнем моря - не более 1000 м
1.3. КТПТО не предназначена дли работы в условиях тряски, вибрации, ударов, но взрывоопасной и химически активной среде,
1.4 Режим работы – продолжительный
2.ТЕХНИЧЕСКИЕ ДАННЫЕ
Примечания: 1.Температура электропрогрева выбирается в зависимости от температуры окружающего воздуха и вида термообработки бетона в соответствии с указаниями Руководства ни производству бетонных работ в зимних условиях.
3. СОСТАВ ИЗДЕЛИЯ
3.1. КТПТО состоит из шкафа управления, силового трансформатора с кожухом, салазок.
3.2. В комплект поставки входит:
3.2.1. силовой трансформатор и шкаф управления, установленные на салазках;
3.2.2. монтажные части согласно ведомости комплекта монтажных частей;
3.2.3. эксплуатационная документация и принадлежности в соответствии с паспортом на силовой трансформатор;
3.2.4. эксплуатационная документация в составе паспорта на КТПТО.
4. УСТРОЙСТВО И РАБОТА КТПТО
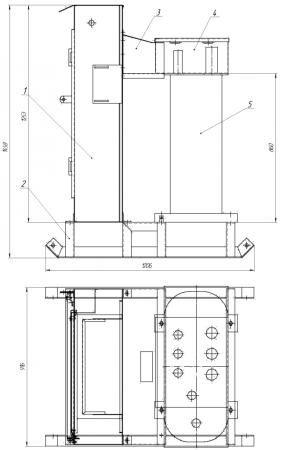
4.1. Составные части КТПТО
соединены между собой болтовыми соединениями. Шкаф управления 1 и силовой трансформатор 2 установлены на салазках 3. которые служат для передвижения по строительной площадке. На крышке силового трансформатора установлен кожух 4 для защиты обслуживающего персонала от случайных прикосновений к токоведущим частям.
Переключение ступеней напряжения осуществляется при отключенном трансформаторе переключателем 5, рукоятки которого находится на крышке трансформатора.
Для обеспечения доступа к переключателю крышка кожуха трансформатора выполнена открывающейся.
4.3. Шкаф управления выполнен бескаркасным в брызгозащитном исполнении. Дверь шкафа управления имеет уплотнение, запирается замком и приспособлена для пломбирования.
За дверью шкафа управления находится панель управления и дверь доступа для подключения к шинам потребителей 6 НН и блок зажимов для подключения кабеля питающей сети напряжением З80 В, которая крепится на петлях и в рабочем положении запирается на замки 7.
На панели управления размещена аппаратура управления, измерительные приборы и сигнальные лампы.
За панелью в верхней части шкафа управления расположены трансформаторы тока, и автоматические выключатели.
Снаружи шкафа управления на левой боковой стенке установлены кнопка 8 экстренного отключения силового трансформатора, силовой разъем («мама») 10 подключения сторонних потребителей переменным трехфазным напряжением 380 В (в углублении) и индикаторная лампочка 9 наличия напряжения на разъеме 10 .
На панели управления с внутренней стороны находится этикетка с изображением принципиальной электрической схемы КТПТО.
4.4. Подключение к цепям электропрогрева 6 осуществляется кабелями или проводами в шланге сеченном до 70 мм3, присоединение проводников к шинам — посредством кабельных наконечников (не входит в комплект поставки).
Предусмотрено подсоединение до четырех кабелей.
В нижней части шкафа (на дне) управлении предусмотрены сальники для ввода кабелей:
Трансформатор ТМТО-80/0,38-У1 предназначен для преобразования электроэнергии в составе устройств термической обработки бетона и грунта, питания ручного электроинструмента и временного освещения.
Трансформатор предназначен для работы в условиях умеренного климата. Рабочая температура окружающего воздуха от минус 45 до плюс 10 оС.
Окружающая среда невзрывоопасная, не содержащая пыли в концентрациях, снижающих параметры изделия в недопустимых пределах. Трансформатор не предназначен для работы в условиях тряски, вибрации, ударов, в химически активной среде. Высота установки над уровнем моря не более 1000 м.
Номинальная частота 50 Гц. Схема и группа соединения обмоток У/Д/Д-11-11. Напряжение в обмотке среднего напряжения (СН) регулируется ступенями при полностью отключенном трансформаторе (ПБВ).
1.1. Подстанция трансформаторная комплектная для термообработки бетона и грунта КТПТОм-80-У1 (далее по тексту КТПТО) напряжением 380/55-95 В мощностью 80 кВА наружной установки предназначена для электропрогрева и других способов электротермообработки бетона и мерзлого грунта с автоматическим регулированием температуры, а также для питания сторонних потребителей переменным трехфазным напряжением 380 В и с максимальным током потребления 16 А.
Термообработка бетона ускоряет процесс его твердения, а наличие автоматического регулировании температуры сокращает расход электроэнергии.
1.2. Нормальная работа КТПТО обеспечивается при:
1.2.1 температуре окружающего воздуха при работе под нагрузкой от 10°С до минус 40°С (эпизодически до минус 45°С);
1.2.2 высоте над уровнем моря - не более 1000 м
1.3. КТПТО не предназначена дли работы в условиях тряски, вибрации, ударов, но взрывоопасной и химически активной среде,
1.4 Режим работы – продолжительный
2.ТЕХНИЧЕСКИЕ ДАННЫЕ
Примечания: 1.Температура электропрогрева выбирается в зависимости от температуры окружающего воздуха и вида термообработки бетона в соответствии с указаниями Руководства ни производству бетонных работ в зимних условиях.
3. СОСТАВ ИЗДЕЛИЯ
3.1. КТПТО состоит из шкафа управления, силового трансформатора с кожухом, салазок.
3.2. В комплект поставки входит:
3.2.1. силовой трансформатор и шкаф управления, установленные на салазках;
3.2.2. монтажные части согласно ведомости комплекта монтажных частей;
3.2.3. эксплуатационная документация и принадлежности в соответствии с паспортом на силовой трансформатор;
3.2.4. эксплуатационная документация в составе паспорта на КТПТО.
4. УСТРОЙСТВО И РАБОТА КТПТО
4.1. Составные части КТПТО
соединены между собой болтовыми соединениями. Шкаф управления 1 и силовой трансформатор 2 установлены на салазках 3. которые служат для передвижения по строительной площадке. На крышке силового трансформатора установлен кожух 4 для защиты обслуживающего персонала от случайных прикосновений к токоведущим частям.Переключение ступеней напряжения осуществляется при отключенном трансформаторе переключателем 5, рукоятки которого находится на крышке трансформатора.
Для обеспечения доступа к переключателю крышка кожуха трансформатора выполнена открывающейся.
4.3. Шкаф управления выполнен бескаркасным в брызгозащитном исполнении. Дверь шкафа управления имеет уплотнение, запирается замком и приспособлена для пломбирования.
За дверью шкафа управления находится панель управления и дверь доступа для подключения к шинам потребителей 6 НН и блок зажимов для подключения кабеля питающей сети напряжением З80 В, которая крепится на петлях и в рабочем положении запирается на замки 7.
На панели управления размещена аппаратура управления, измерительные приборы и сигнальные лампы.
За панелью в верхней части шкафа управления расположены трансформаторы тока, и автоматические выключатели.
Снаружи шкафа управления на левой боковой стенке установлены кнопка 8 экстренного отключения силового трансформатора, силовой разъем («мама») 10 подключения сторонних потребителей переменным трехфазным напряжением 380 В (в углублении) и индикаторная лампочка 9 наличия напряжения на разъеме 10 .
На панели управления с внутренней стороны находится этикетка с изображением принципиальной электрической схемы КТПТО.
4.4. Подключение к цепям электропрогрева 6 осуществляется кабелями или проводами в шланге сеченном до 70 мм3, присоединение проводников к шинам — посредством кабельных наконечников (не входит в комплект поставки).
Предусмотрено подсоединение до четырех кабелей.
В нижней части шкафа (на дне) управлении предусмотрены сальники для ввода кабелей:
- питающей сети 380 В на ток 135 А;
- цепей электропрогрева;
- стороннего потребителя на напряжение 380 В и ток 10 А.
Трансформатор ТМТО-80/0,38-У1 предназначен для преобразования электроэнергии в составе устройств термической обработки бетона и грунта, питания ручного электроинструмента и временного освещения.Трансформатор предназначен для работы в условиях умеренного климата. Рабочая температура окружающего воздуха от минус 45 до плюс 10 оС.
Окружающая среда невзрывоопасная, не содержащая пыли в концентрациях, снижающих параметры изделия в недопустимых пределах. Трансформатор не предназначен для работы в условиях тряски, вибрации, ударов, в химически активной среде. Высота установки над уровнем моря не более 1000 м.
Номинальная частота 50 Гц. Схема и группа соединения обмоток У/Д/Д-11-11. Напряжение в обмотке среднего напряжения (СН) регулируется ступенями при полностью отключенном трансформаторе (ПБВ).
Документы
Серия подстанции
КТПТО (прогрев бетона)
Мощность подстанции, кВА
80
Материал обмоток трансформатора
Al
Напряжение ВН подстанции, кВ
0,38
Цвет металлокострукции
синий (RAL 5015)
Мощность нагрузки, кВт
80
Выходное линейное напряжение ступеней, В
55, 65, 75, 85, 95
Ток нагрузки на ступени(ях) максимальный, А
471(75, 85, 95), 520(55, 65)
Сечение жилы сетевого кабеля, мм2
35
Сечение проводов нагрузки, мм2
140 (2x75)
Тип охлаждения
масляное
Габаритные размеры ДхШхВ, мм
1206х916х916
Масса, кг
650
