Характеристики
Серия подстанции
—
КТПТО (прогрев бетона)
Мощность подстанции, кВА
—
80
Материал обмоток трансформатора
—
Al
Напряжение ВН подстанции, кВ
—
0,38
Цвет металлокострукции
—
серый (RAL 7040)
Мощность нагрузки, кВт
—
80
Все характеристики
Наличие уточняйте у наших менеджеров
Характеристики
Серия подстанции
КТПТО (прогрев бетона)
Мощность подстанции, кВА
80
Материал обмоток трансформатора
Al
Напряжение ВН подстанции, кВ
0,38
Цвет металлокострукции
серый (RAL 7040)
Мощность нагрузки, кВт
80
Выходное линейное напряжение ступеней, В
55, 65, 75, 85, 95
Ток нагрузки на ступени(ях) максимальный, А
471(75, 85, 95), 520(55, 65)
Сечение жилы сетевого кабеля, мм2
35
Сечение проводов нагрузки, мм2
140 (2x75)
Тип охлаждения
масляное
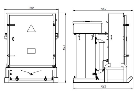
Габаритные размеры ДхШхВ, мм
1050х960х1240
Масса, кг
495
Транспортный габарит ДхШхВ, мм
1050х960х1240
Текст с акцией
абсолютная надежность
Услуги
